Gîte 3 étoiles à Nans-les-Pins
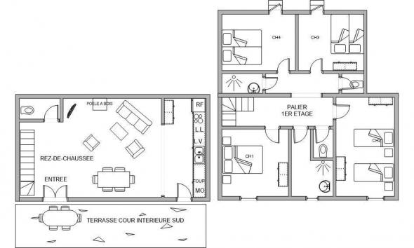
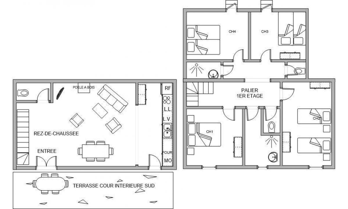
Spacieuse maison mitoyenne de 120 m² avec piscine, terrasse, jardin non clôturé au coeur du Parc naturel régional de la Sainte Baume avec vue sur les vignes, proche du centre et des accès aux sentiers pédestres pour monter à la grotte Marie-Madeleine.
4 chambres | 8 pers. | 120 m²
Semaine : de 780 à 1 400 € (2 nuits minimum)
Caution : 200 €.
Possibilité au mois : 4000 à 5400 selon la période.
OUVERTURE
Toute l'année tous les jours.


968 route de la Sainte Baume
83860 Nans-les-Pins
06 63 27 83 81
06 63 51 29 15
aetcdgr@gmail.com
Site Web
INFOS UTILES
Label Gîte de France
Piscine privative, ouverte de 10h à 23h
Cuisine disposant d'une grande porte fenêtre donnant sur la cour
2 salle d'eau et 3 wc










Installé non loin du célèbre massif de La Sainte-Baume, ce charmant village jouit depuis fort longtemps de l'appellation "Station Touristique" dû à son environnement, son climat et son air pur. Nombre de centres de réeducation et autres soins médicaux en sont la preuve. Le coeur du village, très animé l'été, se plait à recevoir, sur le cours, aux terrasses des cafés et restaurants les nombreux visiteurs en vacances. C'est également là qu'a lieu le marché le dimanche matin.